Zum Inhalt springen
Architekt DI Bernd Brandner
Architekt DI Bernd Brandner
Staatlich befugter und beeideter Ziviltechniker in Wien
  • HOME
  • Leistungen
  • Projekte
  • Info
  • Links & Service
  • Team
  • Kontakt
  • HOME
  • Leistungen
  • Projekte
  • Info
  • Links & Service
  • Team
  • Kontakt

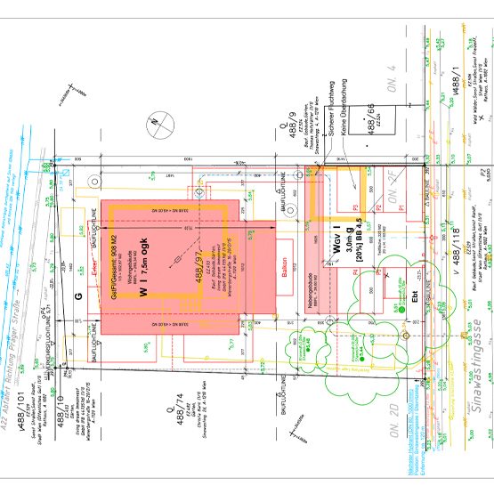
Wohngebäude – SIWA2F

Projektbeschreibung:

Neubau eines Wohngebäudes

 Leistung:

Bauliche Planungsleistungen

Adresse:

1210 Wien, Sinawastingasse 2F

Zeitraum:

04/2023 –

Kategorie: Aktuelle Projekte, Ausgewählte Projekte14. November 2023

Project navigation

ZurückPrevious project:Doktoratsstudium MUK – BRÄU5NächstesNext project:Wohngebäude – JSG24
Kontakt
  • Adresse:
    Prinz Eugen Strasse 80 / 20
    1040 Wien
  • Telefon Mobil:
    +43 699 140 50 299
  • E-mail:
    brandner@architec.at

Finden Sie uns auf:

FacebookLinkedinE-MailXING
Projekte
Impressum
Architekt DI Bernd Brandner
Staatlich befugter und beeideter Ziviltechniker

Mitglied der Bundeskammer der ZiviltechnikerInnen | Arch+Ing

Allgemein beeideter und gerichtlich zertifizierter Sachverständiger
für die Fachgebiete: 09.50 (nur für: Wien, Baurecht), 73.01, 94.70

Architekt DI Bernd Brandner
Bankerverbindung: Die Erste Bank – IBAN: AT94 20111 30035100685 - BIC: GIBAATWWXXX - Gerichtsstand: Wien - UID: ATU 56949967
  • Login
  • Privat
  • website by itellico
Useful Links

Durch die weitere Nutzung der Seite stimmst du der Verwendung von Cookies zu. Weitere Informationen

Die Cookie-Einstellungen auf dieser Website sind auf "Cookies zulassen" eingestellt, um das beste Surferlebnis zu ermöglichen. Wenn du diese Website ohne Änderung der Cookie-Einstellungen verwendest oder auf "Akzeptieren" klickst, erklärst du sich damit einverstanden.

Schließen